indietro

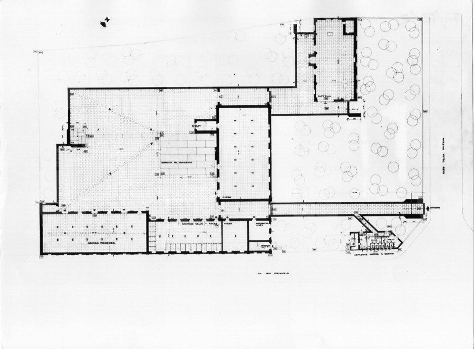
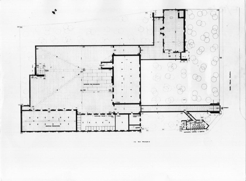
Piante della Risiera di San Sabba

Anonimo - fotografo principale

STAMPA LA SCHEDA COMPLETA pdf
Oggetto
Positivo
Inventario
RF000766| RF000767
Collocazione
Palazzo Gopcevich; Fototeca dei Civici Musei di Storia ed Arte; Fototeca dei Civici Musei di Storia ed Arte
Acquisizione
Proprietà Ente pubblico territoriale; Comune di Trieste
Cronologia
1965 post; Trieste; Italia
Dimensioni
altezza 176; larghezza 235; mm
Materia e tecnica
carta / Gelatina ai sali d'argento

Trieste - Risiera di San Sabba

Campi di concentramento tedeschi - Trieste - Risiera di San Sabba

Bibliografia

Civico Museo della Risiera di San Sabba : monumento nazionale, Trieste, Comune, 2022
Consulta OPAC BiblioEst SBN

Civico Museo della Risiera di San Sabba : monumento nazionale, Trieste, 2016
Consulta OPAC BiblioEst SBN

Risiera di San Sabba : monumento nazionale, Trieste, Comune, 1995
Consulta OPAC BiblioEst SBN

stampa

« Scheda precedenteScheda successiva »